Schematic Floor Plan (2012)

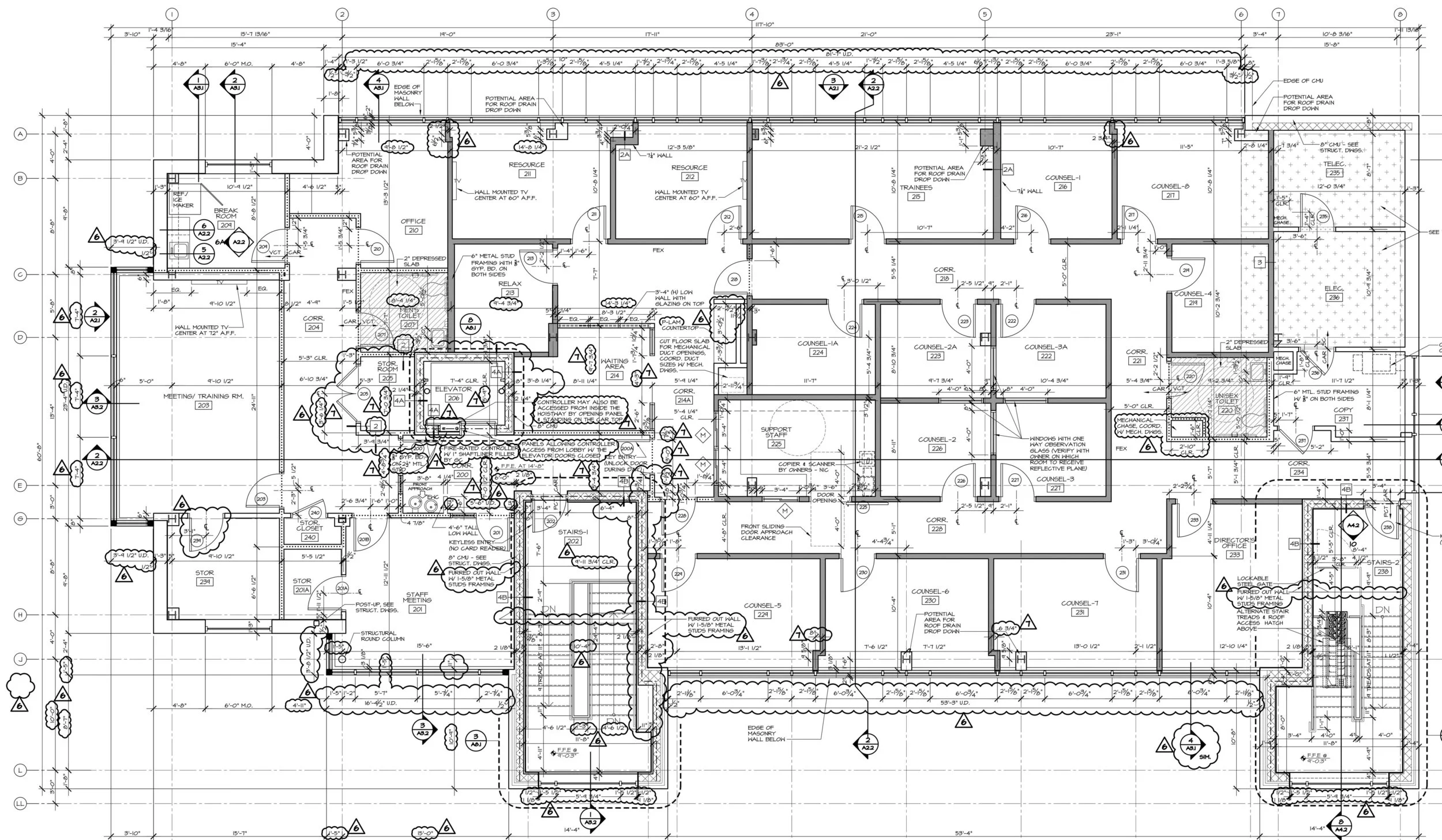
First Floor Plan at New UNC-P Site (2015) - Initially over its desired budget, UNC-P requested we address whatever we could to have it fall into line. We proposed a Value Engineering plan and following approval by UNC-P, this project, we:

(1) Trimmed the building's square footage without sacrificing much-needed programmatic areas;                                                                                            (2) Simplified the Mechanical System, requiring modifications to the Structural System to accommodate it;                                                                    (3) Specified a new elevator;                                                                                                                                                                                                                      (4) Revised all interior finishes, including a sliding door; and,                                                                                                                                           (5) Changed the Curtain wall system to Storefront.

I assisted with these revisions in drawings, schedules, and specifications. UNC-P also requested a private entry for counseling and selected a new site, so utility infrastructure was also re-coordinated. At the same time, we also addressed all State Construction Office Review Comments.

Second Floor Plan at New UNC-P Site (2015)

Elevations at New UNC-P Site (2015), illustrating simplification for Value Engineering